Maison unifamiliale à HEUSY (4802)

À partir de 550.000 €

Description
Heusy, superbe villa coup de coeur, dans un quartier résidentiel recherché ! Située à deux pas de toutes les commodités, cette charmante propriété est dans un rare quartier surnommé l'Avenue, où tous les voisins se connaissent et se rassemblent une fois l'année. Elle se situe dans une rue sans issue, bénéficiant d'une vue dégagée et verdoyante. Au rez-de-chaussée, vous serez accueilli par un hall d’entrée spacieux menant à un séjour lumineux ouvert sur une cuisine hyper-équipée, avec un accès direct à la terrasse et au jardin. Une buanderie, un WC visiteurs ainsi qu’une chambre/bureau complètent ce niveau, idéal pour un espace de télétravail. À l’étage, vous découvrirez quatre belles chambres, un dressing/chambre, une salle de bains et un WC séparé. Le sous-sol offre un bel espace de rangement avec trois caves et un garage pour deux voitures. Confort garanti grâce à un chauffage central au gaz avec chaudière de 2020 et un poêle à bois dans le séjour. Les châssis en bois double vitrage, équipés de vitrage anti-effraction et volets à certains châssis, assurent sécurité et isolation. Particularités: Chauffage central au gaz (2020), climatisation chaud/froid dans 5 chambres, châssis en PVC double vitrage, électricité conforme, grande terrasse avec jardin, 24 panneaux photovoltaïques, installation prévue pour une borne de recharge à rue, un grand grenier. Le PEB de 2016 ne tient compte des panneaux solaires, nouvelle chaudière, climatisation, ...

COMPOSITION

Sous-sol

- 2 caves

- Garage 2 voitures

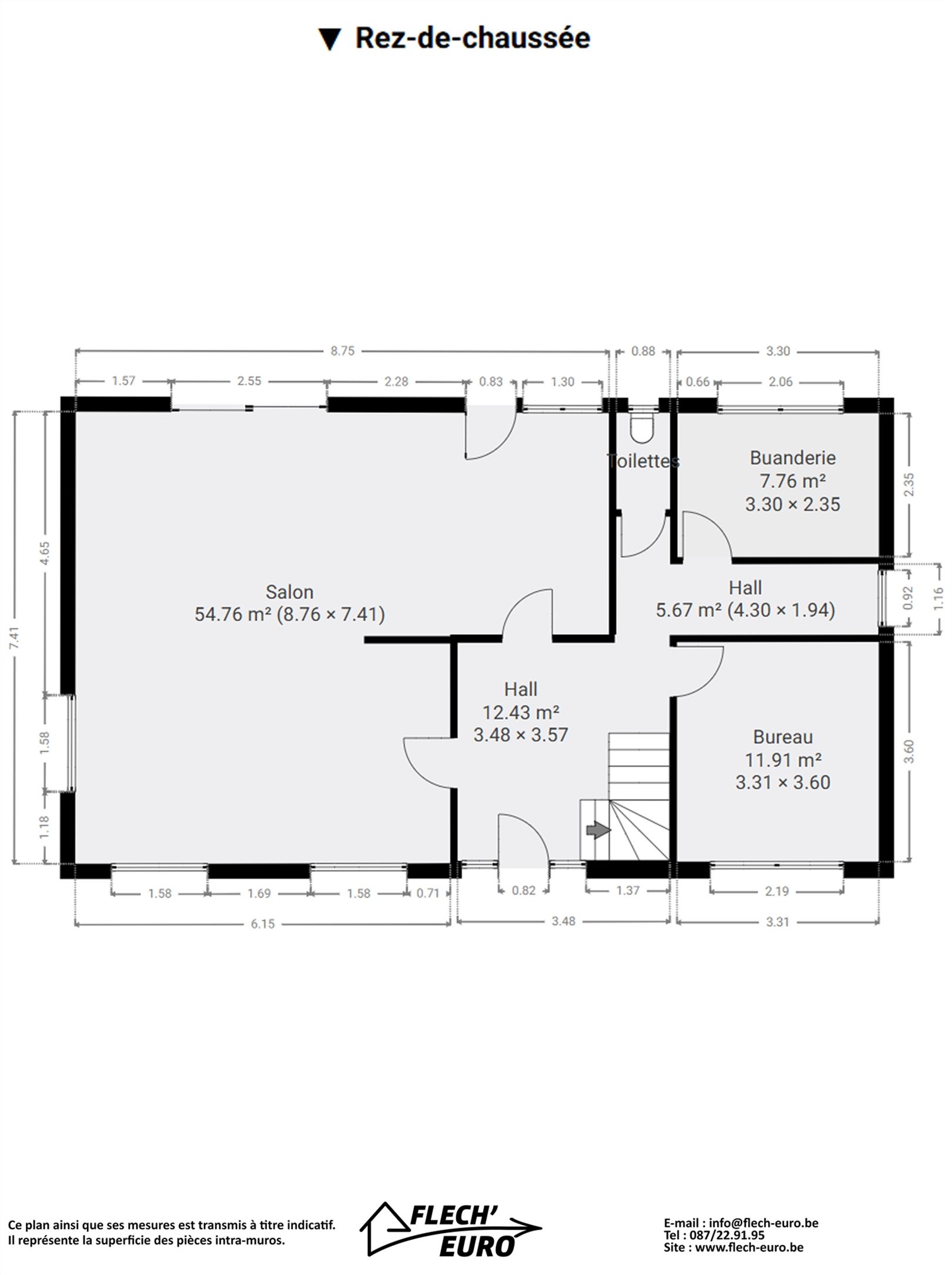
Rez-de-chaussée

- Hall d'entrée

- Séjour comprenant un coin cuisine Hyper équipée

- Chambre à coucher / bureau

- Buanderie

- WC

1er étage

- Hall de nuit

- 5 grandes chambres à coucher

- salle de douche / bain

- WC

 

PARTICULARITÉS

- Chauffage central au gaz (2020)

- Climatisation chaud/froid dans 5 chambres

- Châssis en PVC double vitrage + anti-effraction au rez-de-chaussée

- Électricité conforme

- Grande terrasse avec jardin

- 24 panneaux photovoltaïques

- Installation prévue pour une borne de recharge à rue

- Grand grenier

Mentions legales
Droit de préemption possible
:
Pas encore demandé(e)
Permis de bâtir obtenu
:
Pas encore demandé(e)
Citation pour infraction urbanistique
:
Pas encore demandé(e)
Autorisation de lotissement
:
Pas encore demandé(e)
Affectation
:
Pas encore demandée
Héritages
:
Non
Confort/Equipements
Chauffage
:
Central gaz 2020
Orientation façade arrière
:
Ouest
Type de toit
:
Toit pointu
Couverture du toit
:
tuiles
Cuisine
:
équipée
Vitrage
:
Double
Type de vitrage
:
pvc
Confort intérieur
:
Buanderie, Dressing, Cuisine hyper-équipée, Feu ouvert K7, Air conditionné
Composition
Hall
:
12,7 m²
Cave
:
11,8 m²
Cave
:
22,0 m²
Garage
:
47,8 m²
Hall d'entrée
:
12,4 m²
Living
:
54,8 m²
Chambre à coucher
:
11,9 m²
Hall
:
5,7 m²
WC
:
1,4 m²
Buanderie
:
7,8 m²
Hall
:
7,4 m²
Chambre à coucher
:
8,7 m²
WC
:
1,9 m²
Chambre à coucher
:
16,2 m²
Chambre à coucher
:
14,0 m²
Chambre à coucher
:
17,6 m²
Chambre à coucher
:
15,5 m²
Salle de bain
:
6,4 m²
Charges
Carte Google
Agrandir le plan
Street view
Général
Prix
:
À partir de 550.000 €
Revenu cadastral
:
1.638 €
Nombre de Chambre(s)
:
6 chr
Nombre de salle(s) de bain
:
1
Garage(s)
:
1
Adresse
:
Avenue des Longues Waides 15, 4802 HEUSY
Superficie totale
:
182 m²
Superficie living
:
53 m²
Superficie terrain
:
1000 m²
Largeur façade
:
14 m
Largeur terrain
:
24 m
Informations financières
Revenu cadastral
:
1.638 €
Droits d'enregistrement
:
16.500 €
Honoraires notaire
:
2.620 €
Honoraires notaire inc TVA
:
3.170 €
Frais divers
:
1.250 €
Total des frais
:
20.920 €
Prix total
:
570.920 €
Certificat energétique
PEB No.20160512004399
E spec
:
250 kWh/m².an
E totale
:
51.942 kWh/an
Emission CO2
:
250 Kg CO2/m².an