Commerce à JEMEPPE-SUR-MEUSE (4101)

1.100.000 €

Description
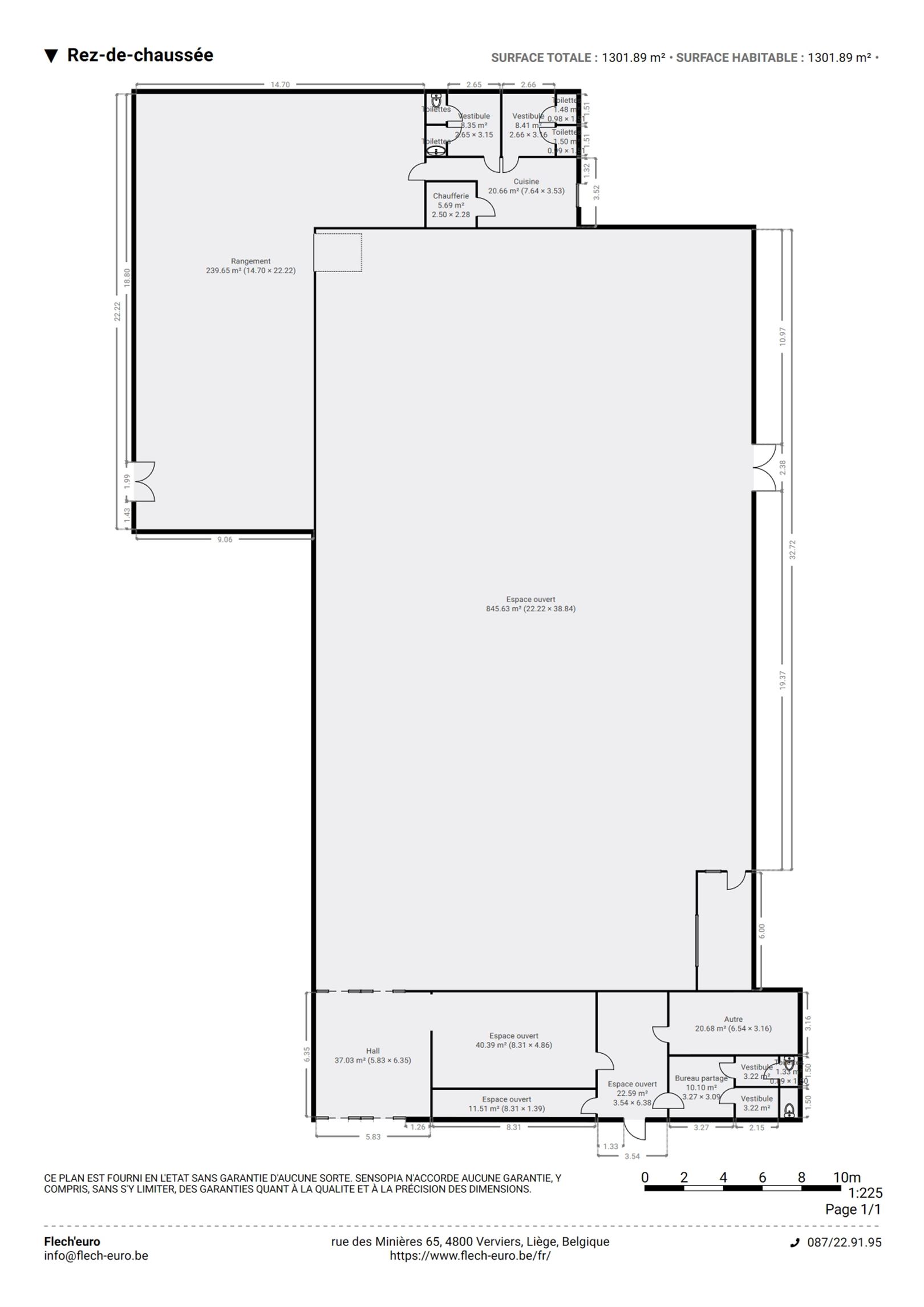
Opportunité rare ! Situé dans une rue commerçante dynamique et à seulement 30 secondes de l’autoroute, cet ensemble immobilier commercial offre une visibilité exceptionnelle et un accès aisé, idéal pour le développement de toute activité. Le bien se compose d'un premier commerce spacieux de 1.187 m², offrant de nombreuses possibilités d’aménagement, une réserve fonctionnelle, des vestiaires séparés hommes et femmes , une cuisine équipée, un petit bureau, un quai de déchargement pratique pour la logistique, u n parking de 52 places, un atout majeur pour la clientèle et le personnel . Un second commerce de 114 m² actuellement loué, génère un revenu locatif mensuel de 2.600€. Cet ensemble constitue une excellente opportunité d’investissement ou d’implantation pour une enseigne recherchant surface, accessibilité et rentabilité immédiate.

COMPOSITION

 

- Grande surface de vente de +/- 845 m²

- Réserve de +/- 240m²

- Petit bureau

- Cuisine

- Vestiaire homme et femme

- Quai de déchargement

- Second commerce de +/- 114m² loué 2.600€/mois

 

PARTICULARITÉS

 

- Double vitrage en aluminium + PVC

- Chauffage par chaudière au gaz

- 52 places de parkings

- Rénové en 2011

- Situation idéale dans un quartier commerçant  .

 

Mentions legales
Droit de préemption possible
:
Pas encore demandé(e)
Permis de bâtir obtenu
:
Pas encore demandé(e)
Citation pour infraction urbanistique
:
Pas encore demandé(e)
Autorisation de lotissement
:
Pas encore demandé(e)
Affectation
:
Pas encore demandée
Héritages
:
Non
Confort/Equipements
Chauffage
:
Foyer au gaz + soufflerie
Orientation façade arrière
:
Nord
Type de toit
:
Toit plat
Cuisine
:
Semi-équipée
Vitrage
:
Double
Type de vitrage
:
pvc
Charges
Carte Google
Agrandir le plan
Street view
Général
Prix
:
1.100.000 €
Revenu cadastral
:
11.701 €
Adresse
:
Rue du Pont 99, 4101 JEMEPPE-SUR-MEUSE
Superficie totale
:
1301 m²
Superficie terrain
:
3958 m²
Largeur terrain
:
56 m
Informations financières
Revenu cadastral
:
11.701 €
Droits d'enregistrement
:
137.500 €
Honoraires notaire
:
2.934 €
Honoraires notaire inc TVA
:
3.550 €
Frais divers
:
1.250 €
Total des frais
:
142.300 €
Prix total
:
1.242.300 €
Certificat energétique
E spec
:
En demande